市役所駐車場案内・混雑状況等

ページ番号1028692 更新日 2025年10月6日

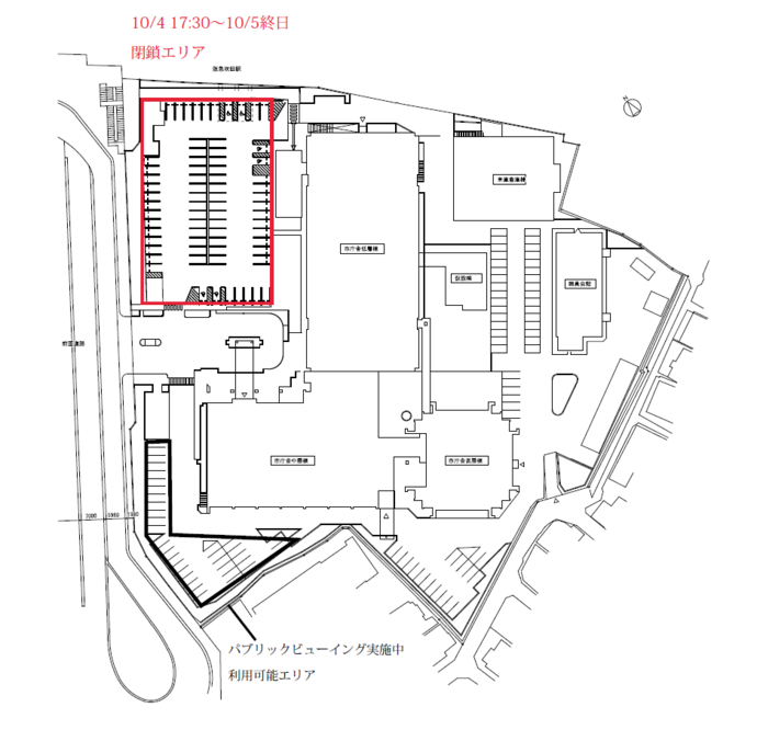
本庁舎駐車場の一部閉鎖について

閉鎖期間 : 令和7年10月4日 (土曜日) 午後5時30分~令和7年10月5日 (日曜日) 終日

ガンバ大阪パブリックビューイング2025の開催に伴い、上記の期間、本庁舎駐車場の一部を閉鎖します。

駐車場を利用される際は、入場ゲート右側の駐車区画に駐車してください。

※混雑緩和のため、閉鎖期間中は公共交通機関での来庁をお願いします。

 

市庁舎駐車場

市役所(本庁舎)駐車場の混雑状況

令和7年10月6日

(月曜日)

午後の状況(午後2時00分)

混雑なし

【ご留意ください】

 開庁日のうち、月曜日と金曜日は駐車場が非常に混雑し、入庫に時間がかかる傾向にあります。

 ※混雑状況は適宜更新されます。

利用時間及び使用料

利用時間

毎日午前8時30分から午後10時

使用料

  • 市役所開庁日の午前8時30分から午後6時までに出場の場合は1時間まで無料
  • 1時間を超える30分までごとに250円
  • 市役所開庁日の午後6時以降に出場の場合・および閉庁日は、30分までごとに250円(1時間の無料措置はありません)
  • 身体障害者手帳、精神障害者保健福祉手帳、療育手帳の交付を受けている方が運転又は同乗する車両が駐車場を利用される際に、出入り口に配置している警備員に身体障害者手帳等を提示すれば、確認のうえ、3時間まで駐車料金を免除します。

※市役所での用務が1時間を超えたときや、市役所閉庁日等であっても市役所での用務で利用したときは、行先課で申し出てください。

料金表

区分 使用料
市役所開庁日(月曜~金曜日)
午前8時30分から午後6時までに出場
1時間まで無料
1時間を超える30分までごとに250円
市役所開庁日(月曜~金曜日)
午後6時から10時までに出場

30分までごとに250円

市役所閉庁日(土曜・日曜日、祝日及び12月29日~1月3日)
午前8時30分から午後10時までに出場
30分までごとに250円

周辺駐車場はGoogle Mapsで検索することができます。(「駐車場」で検索)

このページに関するお問い合わせ

総務部 総務室
〒564-8550 大阪府吹田市泉町1丁目3番40号 (高層棟8階 802番窓口【庁舎管理】、低層棟3階 研修室【統計】、職員会館1階【車両・部落有財産】)
電話番号:
【庁舎管理】 06-6384-1230
【統計】 06-6384-1627
【車両・部落有財産】 06-6384-1499

ファクス番号:
【庁舎管理・統計】06-6337-1631
【車両・部落有財産】06-6155-9959

お問い合わせは専用フォームをご利用ください。

ご意見をお聞かせください

このページに問題点はありましたか?(複数回答可)